aRT-DECO MALL BAR

proposal for an Art Deco-inspired cocktail bar in the center of Bayview Mall.

the design features a rounded enclosure of veneered panels, accented by metalwork, rounded railing, and a murano glass chandelier suspended below a central skylight.

shown below is a blend of various material and colour palette iterations.

PROGRAM

guest capacity:

20 seats, 10 standing table spots, 8 countertop spots

SKETCH IDEATION

Make it stand out

Whatever it is, the way you tell your story online can make all the difference.

 

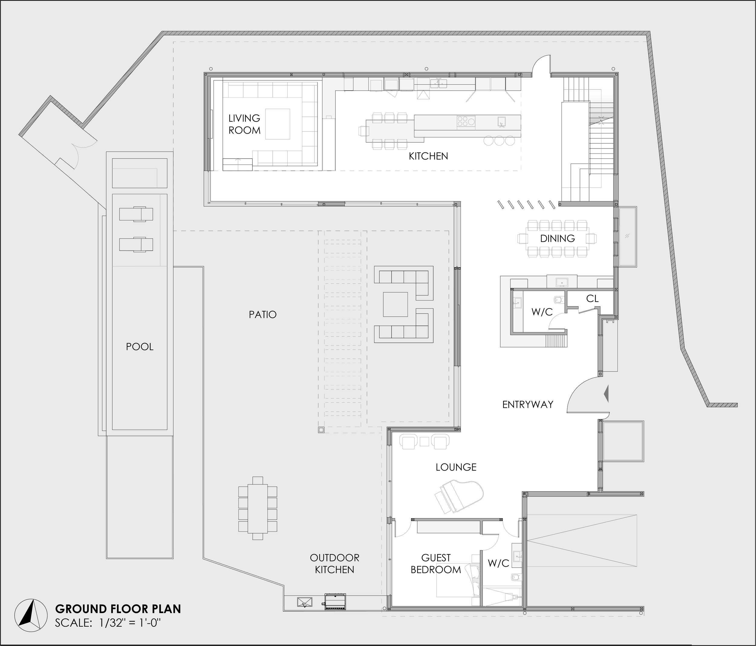
beverly hills villa

This villa is partially elevated on stilt supports to accommodate the site’s topography.

The interior features an open-concept floor plan that wraps around an expansive patio terrace, creating fluid circulation between living spaces and the outdoors. floor to ceileing glass windows and doors maximize views from the elevated structure.

Stylized Hand Rendering

Stylized Hand rendering

project updates were presented with a combination of models, renderings, and autocad drawings coloured with photoshop to reflect chosen materials.

on occasion, ai renderings of ‘ugly’ sketchup models were utilized as a time-saver, replacing hours of modelling and rendering with a few minutes of prompt-correction.(as seen in the images below) Although a few details were not totally accurate, this method proved effective in communicating the mood of the design & materials.

 

models & renderings

 

concepts + exercises

Flowing Water Pavilion

The flowing water pavilion is an abstractified concept for AN experience design inspired by the movement of water.

built on a slope, falling rainwater moves through the sculptural pavilion, much like the visitors themselves, moving through The structure. the pavilion is meant for a sloped open park area, creating multiple mini-spaces within the structure to walk, sit, or relax by the water.

the copper ‘spout’ collects rainwater at the top of the hill, and pours it into the channel below where it flows through the wavy canal between the staircases filling a shallow pool, before eventually running off.

 

Ladybug Pavilion

tHE LADYBUG PAVILION IS A semi-outdoor sculptural design inspired by the form of a ladybug.

imagined for a park space, the structure features metal benches facing towards each other, creating a social gathering space.

even though the structure is open to the exterior, its concave wings form a protective shelter that feels cozy and inviting.

 
 
 

artist shed

The artist’s shed is a hypothetical study of sculptural Form in architecture, within the context of a small single-occupancy structure. The technical focus of the project is in building methodology, experimental materials (rammed-earth instead of concrete), and construction details.

the intent for the structure is to function as an outbuilding drawing space for an artist, maximizing natural light whilst also providing a wide view of the surrounding environment.

the shed is intended to be a minimalist, ‘bare-bones’ space mainly featuring an office space surrounded by large windows, storage for supplies, and basic utilities such as running water.